


The Rumah Kebun (outhouse) is perpendicular to the main house . The Rumah Kebun has a small window at the frontage , with airing ( ventilation ) holes all around the house. The Rumah Kebun is full of garden tools & traps like squirrel traps. I am not sure whether my late uncle actually used these traps ! There is no electricity and no sewage system in the Rumah Kebun. The zinc roof needs to be fixed as there are holes and parts of the zinc have gone rusty.



These garden tools belong to my late uncle like wheelbarrows, cangkuls and as can be seen in the above photos all types of wiring , pesticides, workmen boots etc . I have instructed Encik Rahman to choose those tools & items that he would use for kebun and to throw away the rest .

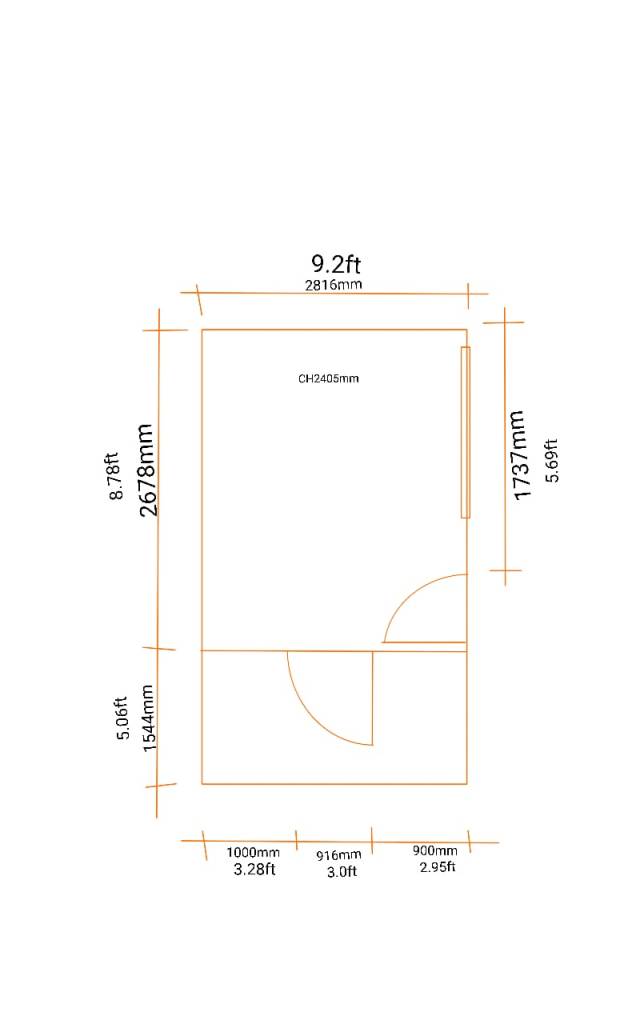
There is two sections of this tiny Rumah Kebun . The proposed plan is to make the smaller section into a toilet with a shower and small wash basin ( like the photo below on the right ) because there is door. This will be a sliding door. The larger section could be able to fit a day bed ( photo on the left). This would be something like this as below:


This would require the electricity to be “pulled” from the main house and a toilet and water supply to be installed. This section of where the day bed is , needs to have AC and probably can have space for a small kitchenette . A table with a kettle to make drinks & a mini single door fridge .Rahiyah suggested a small outdoor kitchen that is not bricked up but this needs to be in an enclosure that is grilled & can be locked ( if not in use )due to petty break-ins. Even in relatively quiet Muar , there are house break-ins , Malaysia is so unsafe in that way ! I need to think about the a small outdoor kitchen but maybe this can be for much later. There are also budget limitations to think of .
Since the Rumah Kebun is turned into a “bachelor pad” or single sleeping quarters , the gardening tools needs to be transferred to a garden shed .


I will buy from Shopee to deliver the garden shed (photo as above )so that the gardening tools can be placed there . The garden shed will be placed in the kebun itself , on a designated site that is on higher ground as prepared by Encik Rahman . The shed needs to be on higher ground as to prevent water level rising due to heavy downpours . Also, the garden shed will be placed as per photo on the right as not to obstruct the view of the Kebun & the trees from the main house . I intend to look at the property again and on-going renos at end of May, 2023 on the way to JB.
I will probably have no time to blog this week when work starts again .
Leave a comment