

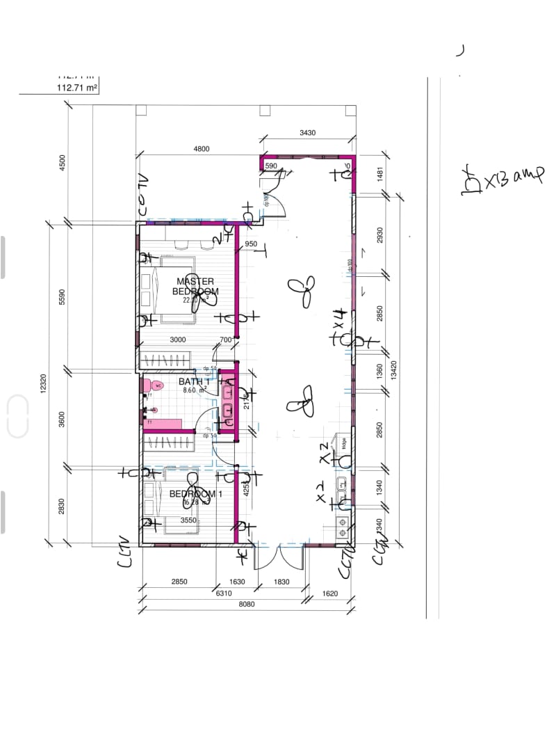
I am putting 4 ceiling fans , 2 ceiling fans in the living room and dining /cum kitchen. One ceiling fan for each of the bedrooms . Having an AC each in the bedrooms and a cassette AC from the ceiling rather than wall AC. That is a good idea as suggested by my contractor.
I am not sure whether garden lights are needed on pathway from kitchen patio to the Rumah Kebun , as this is a short distance so I think stumbling in the dark should be ok ha ha .


Front facade of the house as in the pillars will stand as it is but no more Greek-like pillars . Rather the pillars will not be serrated or have grooves but will be straight pillars . I do not like anything Grecian or pseudo-Grecian look alikes . I think it really looks old-fashioned and want clean straight lines to the house . The curvature at the front facade will be gone and there will be a straight line so previously , there was a little patio with grecian pillars will be gone. This means that the living room can start from the 2 pillars at the front on the left-side of the house.


The piling and metal rods being put as foundations of the house . Hopefully this should make the foundation of the house stronger.




This is such a little house and requires so much effort and money !!! How do these people in Youtube, restore chateaus in France on their own . The mind just boggles !
Have gone online at estsy.com to buy lights rather than trips at the shops looking at lights . From past experience , did not find lights that I really like in the PJ shops. Probably requires a trip to downtown KL city center which I dont really want to go as means a drive and really , do not have much time . Contemplating a weekend trip to Bangkok to buy lights as lights there are so much cheaper and more to my taste . That sounds contradictory as the flight & hotel fare in Bangkok might turn out to cost more than me ordering lights online .Hmmm….
Leave a comment